Az Év Tervezett Kereskedelmi Projektje

Centerpoint 3 Irodaház

Adatlap megosztása

Cím 1139 Budapest, Váci út 85.

Átadás éve: 2026

Ingatlan mérete 53500 m²

Főbb ügyfelek, referenciák A bérlők kiléte jelenleg nem nyilvános.

Rövid bemutatkozás

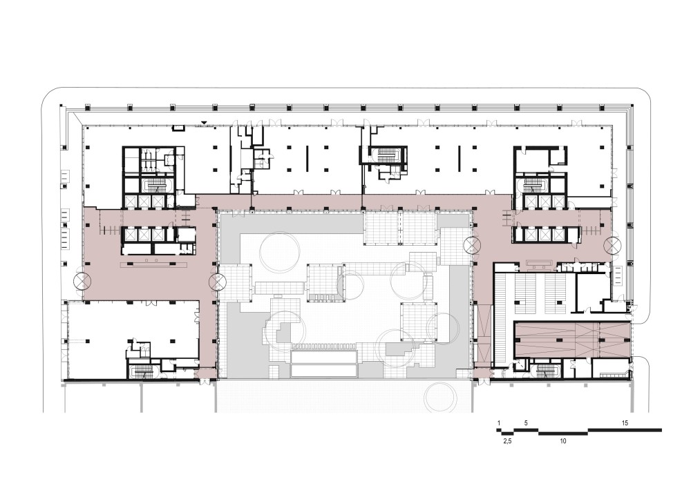
A Centerpoint 3 megvalósulásával – a meglévő Centerpoint 1-2 egységekkel együtt – Magyarország legnagyobb alapterületű irodaháza jön létre. A beruházás célja egy olyan összetett, több traktusból álló, modulárisan bérelhető irodaház létrehozása, amely önmaga funkcióján túlmutatva a környező városi szövetet is alakítja. Ennek eszköze a közterület számára átadott, a gyalogosforgalom által használható kétszintes árkád, továbbá a honos fajokkal betelepített belső kert, továbbá a növényzettel ellátott homlokzat.
A CP3 műszaki és fenntarthatósági megoldásai a budapesti irodapiac élvonalába pozícionálják az épületet: LEED Gold és WELL minősítésre tervezett, Access4You védjeggyel rendelkező, energiahatékony, okos ház, ahol a zöld megoldások nem extra szolgáltatást, hanem alapértéket jelentenek. A 17 éve működő Centerpoint 1–2 tapasztalatára építve a komplexum olyan városi léptékű, fenntartható, emberközpontú irodakörnyezetet hoz létre, amely egyedülálló, jövőálló alternatívát kínál a piacon.


Okok, amiért a díjra érdemes

A Centerpoint 3 nem egyszerű irodaház, hanem egy teljes városi háztömböt újraértelmező, emberközpontú campus a Váci úti folyosón. A projekt mind építészetében, mind működésében túlmutat a megszokott kategóriákon, ezért erős aspiránsa a díjnak.


Építészet és városszövet
A CP3 a több mint egy évtizede sikeresen működő Centerpoint 1–2 természetes folytatása, az épülettömb záró eleme, amely a három egységet egyetlen, tudatosan komponált városi együttessé kapcsolja. A gyalogosbarát, kétszintes árkádsorral a fejlesztés valódi közteret ad vissza a városnak: szélesebb járdákat, az autóforgalomtól védett zónát és kereskedelmi egységekkel aktivizált utcafrontot hoz létre a korábban szűk, átmenő forgalmú mellékutcák helyén.


A belső udvarok összenyitásával egy új gyalogos útvonal és találkozási pont jön létre, amely bekapcsolódik a környék közlekedési hálózatába, és kaput nyit a Váci út és a sűrű lakóövezet között. Az új homlokzat egyszerre reflektál a CP1–2 arányaira és a szomszédos historikus bérház karakterére, miközben a „kiharapásokkal” tagolt tömegképzés bőséges természetes fényt enged az irodákba, és ikonikus megjelenést ad az épületnek.


Az ingatlan mérete 53.500 m2, melyből 36.000 m2 bérbeadható terület várja a jövőbeni bérlőket.


Zöld, egészséges környezet
A közel 2 000 m²-es belső kert, a lombos fasorokkal és több szinten megjelenő zöldfelületekkel valódi városi oázist teremt egy sűrűn beépített környezetben. A tájépítészeti koncepció biodiverz, többszintes, döntően honos növényállományt alkalmaz szárazságtűrő fajokkal, minimalizált öntözési igénnyel, amely fenntartható és klímatudatos megoldás.


A földszinti, üvegezett körfolyosó, és a növényekkel, kültéri sport- és játékelemekkel, pihenőzónákkal felszerelt kert nemcsak a bérlők, hanem a városlakók számára is elérhető, így a CP3 valódi közösségi térként működik. A felsőbb szinteken sorakozó teraszok és balkonok a mindennapi munkavégzést kapcsolják össze a természet közelségével, ami differenciáló érték a hagyományos irodaházakkal szemben.


Művészet és márkaélmény
A természet tematika a belső terekben művészeti tartalomként folytatódik: a bejárati csarnokok feletti, esőerdő ihlette, nagyméretű, átvilágított álmennyezet, valamint a grafikus falak karakteres, könnyen azonosítható vizuális identitást hoznak létre. Ez a „wow-faktor” lobby-élmény a bérlők employer brandingjét is támogatja, hiszen inspiráló fogadóteret kínál.


A gondosan megkomponált belsőépítészeti koncepció – a közösségi terektől a mosdóblokkokig – egységesen kommunikálja a fenntartható, modern és játékos márkaértékeket, ami különösen fontos a fiatal tehetségekért versengő vállalatok számára.


Fenntartható, jövőbiztos technológia
A CP3 a legújabb nemzetközi sztenderdek szerint lett megtervezve: LEED Gold minősítést már elért a kivitelezési fázisban, WELL Gold és Access4You Gold tanúsítványokra kalibrált megoldásokkal.


A hővisszanyerős légkezelők, az energiamonitoring, az intelligens szivárgásérzékelés, a LoD-vezérelt árnyékolók és nyílászáró-szenzorok, valamint a rekuperatív, célállomás vezérelt liftek mind az üzemeltetési költségek és az ökológiai lábnyom minimalizálását szolgálják. A homlokzatban alkalmazott alacsony szénlábnyomú alumínium és a vízöblítési szisztéma tovább erősítik a projekt élenjáró ESG-profilját.


Mobilitás és szolgáltatási ökoszisztéma
A CP3 több mint 200 férőhelyes kerékpártárolóval, kerékpáros öltözőkkel és a szabványt bőven meghaladó számú zuhanyzóval ösztönzi az aktív, autómentes közlekedést. A 22 darab közös használatú elektromosautó-töltő, a fejlett parkolómenedzsment-rendszer, e-bike töltés együtt olyan mobilitási csomagot alkot, amely a fenntartható közlekedést a gyakorlatban is vonzóvá teszi.


A teljes Centerpoint-kampuszon már ma is működő szolgáltatások – éttermek, kávézó, fitnesz, konferenciaközpont, bank, optika, autómosó – mellé a CP3-ban további szupermarket, kávézó, szépség- és egészségügyi szolgáltatások, valamint nagyvonalú, vízfelülettel kiegészített belső kert kerülnek. Mndez olyan szintre emeli a munkavállalói élményt, amely túlmutat egy hagyományos „irodaház plusz kantin” modelljén.


Hozzáadott érték a piacon
A Center Point 3 egyszerre városi közteret teremt, zöld kampuszt épít és magas minőségű, rugalmas irodatereket kínál, miközben bizonyítottan hosszú távra elkötelezett, nemzetközi fejlesztői háttér áll mögötte. E komplexitás – az építészeti minőség, a városszövetre gyakorolt pozitív hatás, a kimagasló ESG-teljesítmény és a szolgáltatási ökoszisztéma együttesen – olyan értékajánlatot hoz létre, amely jelenleg ritka a budapesti irodapiacon.


Mindezek miatt a CP3 nem csupán egy sikeres új irodaház, hanem iránymutató példa arra, hogyan nézhet ki a következő évtized fenntartható, élhető és szerethető nagyvárosi irodakörnyezete – erős érvként szólva amellett, hogy Az Év Irodája díj egyik legkiemelkedőbb jelöltjeként tekintsünk rá.


Tervezők

Építtető: GTC Hungary
Építészeti tervezés: Atelier Thomas Pucher és Bánáti + Hartvig Építész Iroda
Vezető tervező: Hartvig Lajos DLA (BH), Thomas Pucher (ATP)
Projektvezető tervezők: Kopasz László, Nagypál Viktor (BH), Robert Lamprecht (ATP)
Tervezők: Dobos Csaba, Fényes Kitti, Kalmár Dorina, Márton Annamária, Mészáros Ádám, Orosz Ádám, Palkó Szilvia, Pusztai Lilla, Szabó Péter, Trinh Hai Dang (BH)


Statika: CE-OS MÉRNÖKI SZOLGÁLTATÓ ÉS TANÁCSADÓ KFT.
Épületgépészet: HANO-PLAN MÉRNÖKI ÉS TANÁCSADÓ KFT.
Elektromos tervezés: ARTREA CONSULTING KFT.
Épületszerkezetek: FRT RASZTER KFT.
Belsőépítészet: MÁDILANCOS STUDIO
Tűzvédelem: FIREENG KFT
Tájépítészet: GARTEN STUDIO KFT.
Út és Közlekedéstervezés: KÖZLEKEDÉS KFT.